
THEORIES OF ARCHITECTURE DESIGN
In Sou Fujimoto’s NA House, what we see on the outside is something related to compositional strategies and design. I like what Colin Rowe said” There are two beauty that is natural and customary” it is very much related to an architect when they want to design a buiding, like Na House natural beauty is from the building geometry itself with the use of rectangular boxes and using law of proportions to it it became a natural beauty, meanwhile customary beauty is the function that is created in the house.
PROLOGUE
P R O P O R T I O N A N D O R G A N I S A T I O N
When we talk about proportion and organisation, it will be those grid and golden ratio all with measurements but things did not change a lot. The essence of this two quality have not change a lot. In todays proportion and organisation, maybe it is necessary for human habitation & functioning or compositional strategies of drawing and design.
ROLE’S OF PROPORTION AND ORGANISATION

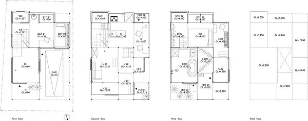
NA HOUSE by Sou Fujimoto
So, I would say that NA Houseis fill with necessity for human habitation & functioning and compositional strategies of drawing and design. How did all the rectangular boxes is place so proportionately and looks so natural you wonder. It’s like what Alberti said” Nature is to act consistently and with a constant analogy in all her operations”. In my opinion, I think that Sou Fujimoto place the rectangular basis by organisation of the house as well, like where should be the kitchen and living room will always be together and where should light penetrates, strongly also that the only geometry he use is rectangle that shows consistent and a constant analogy as well.


NA HOUSE by Sou Fujimoto
Sou Fujimoto tried to use rectangle and intersection between them to create a link, he success in making this link like all home’s essence that is wherever you are you can feel your partner or family around. In terms of this to proportion and organisation, the sound of the living room can be heard from the reading area that creates a link between them. In my opinion, I think that Sou Fujimoto doesn’t want to create a normal house with just wall that creates a layer that divide the organisation, in this building he created a home more than just a house that families are able to feel warm and secure although he use a very transparent material. If we look back to the old organisation, only living and kitchen will be link like what Le Corbusier said “The dining room and living room are combined; nevertheless a sideboard(in concrete) forms a spine to seperate them”. In this new organisation Sou Fujimoto create, it connects almost all the space together as one to create harmony and warmth.
NA HOUSE by Sou Fujimoto
CONCLUSION
In my point of view, I always admire architect that who create new concepts like Sou Fujimoto that create a new organisation that connects all the space together. Architects today should learn that not to follow the ways that what old architects do but to acknowledge them and learn from them but not to follow, by means not to follow is to be yourself and create something new or a new concept.